Basel Sommergasse
AUSBAU DACHSTOCK| Wohnen in Weiss| Basel | 2007
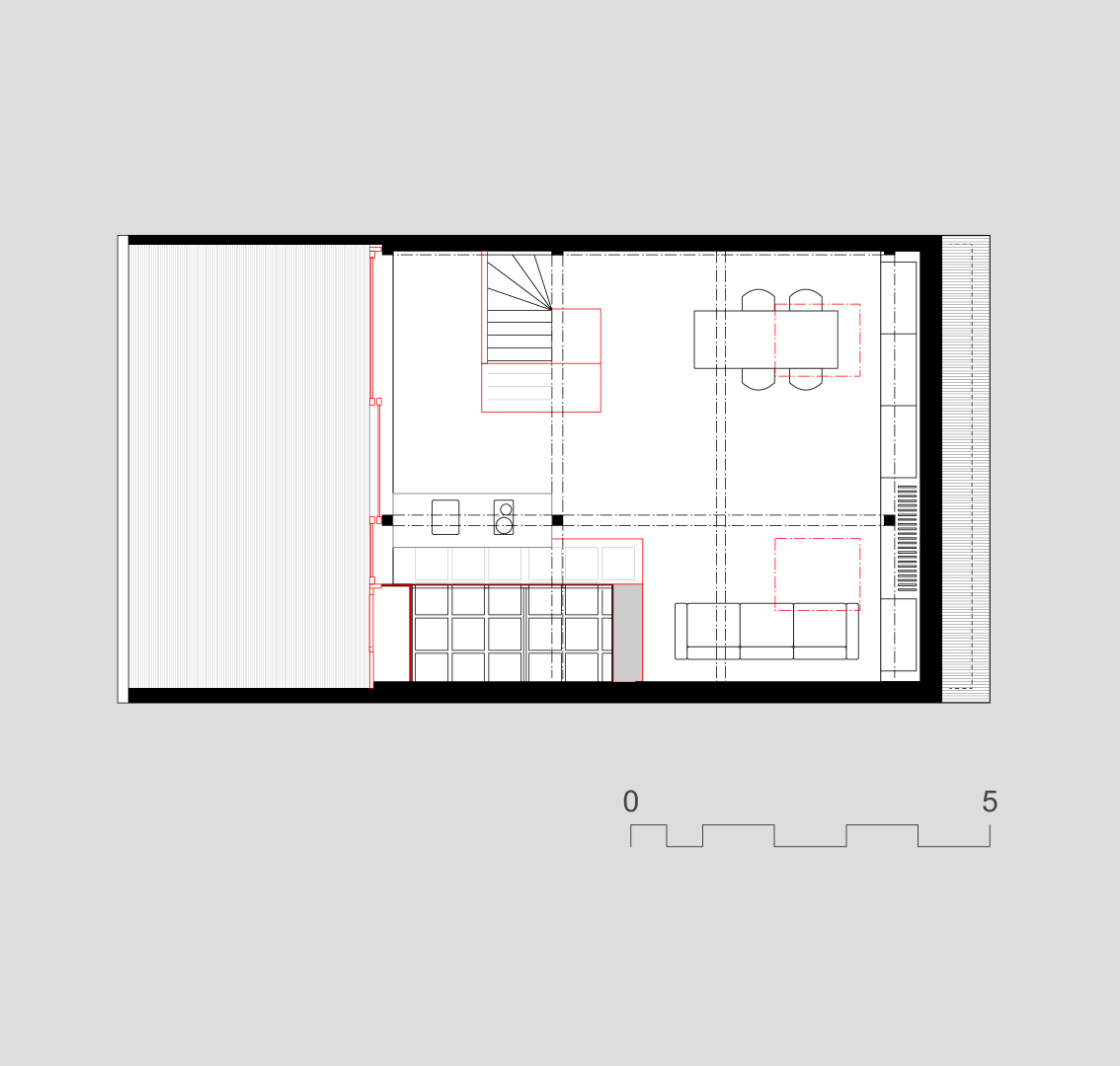
Das viergeschossige Haus von 1906 liegt in einem Basler Vorstadt Quartier und ist geprägt von hohen – eher dunklen Räumen, einem Treppenhaus mit Oblicht, Holzverkleidungen und Eichenböden sowie einer schattigen Hinterhofveranda im Erdgeschoss. Mit dem Ausbau des Dachraumes wurde das Haus um einen hellen Raum mit sonniger Terrasse ergänzt.
Dazu wurde der Dachraum von den Estricheinbauten und dem Oblichtschacht mit Dachflächenverglasung befreit und das Dach für den Terrasseneinschnitt gekürzt. Die neuen Einbauten mit den schiefen Ebenen – Oblichtschacht und Treppenaufgang – gliedern den Raum in einen Wohn- und einen „Wintergarten-bereich“ ohne diesen zu trennen. Die Verglasung des Oblichtschachtes ab Brüstung verleiht diesem eine Leichtigkeit und ermöglicht vertikale Sichtbezüge. Besonders abends wird das Kunstlicht des Dachraumes bis in das Erdgeschoss hinunter wahrnehmbar.
Mit dem Einbau von zwei zusätzlichen Dachflächenfenster und einer Fensterfront auf die Terrasse hinaus bekommt der Raum die nötige Helligkeit. Dessen farbliche Ausgestaltung – Wände und Decken wurden weiss, Holzboden, Holzbalken und Brüstungen hellbeige gestrichen – unterstreicht dabei den vertikaasdfalen Kontrast innerhalb des Hauses. Fotos: Mathias Leemann









