Blauen Schwabenmatt
Das Gebiet Schwabenmatt liegt Eingangs der Gemeinde Blauen im Laufental. Das Gelände ist schwach geneigt und ermöglicht einen herrlichen Blick in den Jura.
Das bis anhin landwirtschaftlich genutzte Land wurde für Stall, Reitplatz und Weide zusammengelegt. Aufgrund des neuen Teilzonenplans wurde dabei eine Bebauungsfläche für Hochbauten und Reitplatz ausgewiesen.
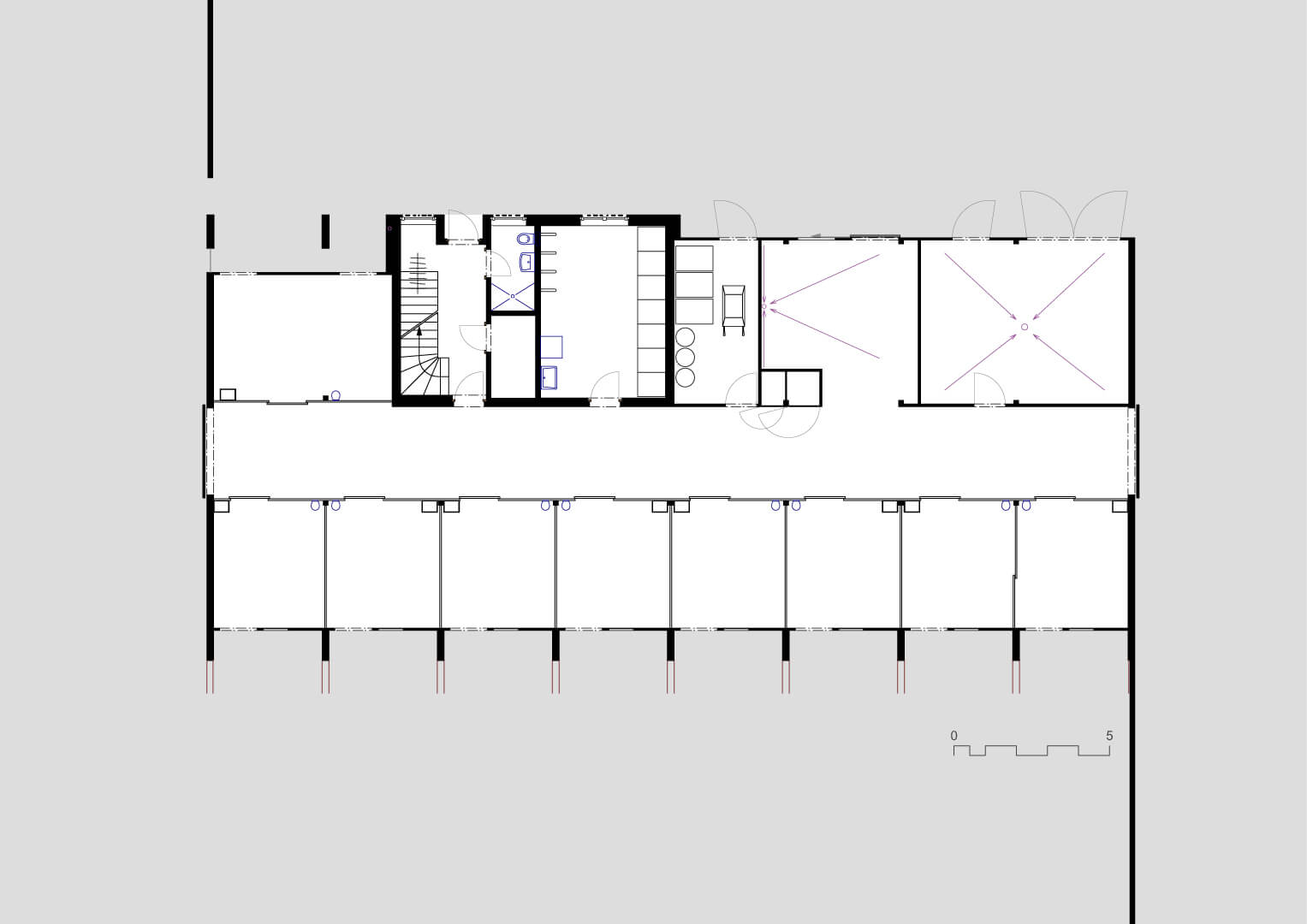
Der Stall hat 8 Pferdeboxen und ein grosse Ponybox. Zugunsten der Besonnung der Paddocks und auch der Photovoltaikanlage wurde das Gebäude nach Süden ausgerichtet. Nebenräume wie Garage für das Hoffahrzeug, Waschplatz für die Pferde sowie Futter- und Sattelkammer sind somit nach Norden orientiert.
Eingang, WC, Technikraum und Sattelkammer werden teilweise temperiert und wurden daher ausreichend Wärmegedämmt.
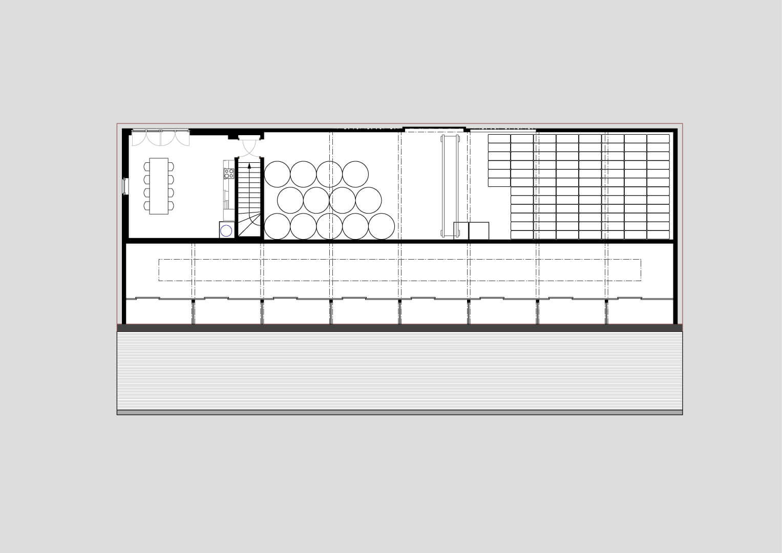
Die nordseitigen Serviceräume des Erdgeschosses wurden im Obergeschoss durch das Heu- und Strohlagers sowie des Aufenthaltsraums ergänzt. Das Heu und Stroh wird durch ein grosses Schiebetor in der Fassade eingebracht, der tägliche Bedarf wird durch den Abwurfschacht in den Stallgang gebracht.








